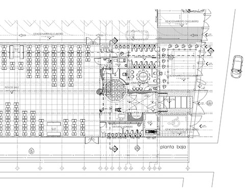
Salón de eventos sociales. Cuautepec de Madero Barrio Bajo, México D.F. Sup. 1,036m2
taller73 arquitectura, ingeniería e interiorismo